Реклама
Главная страница » Статьи » Городошный спорт » Правила игры в городки » Оборудование, инвентарь
Оборудование, инвентарь
Правила соревнований
Оборудование, инвентарь
1. Городошная площадка и ее оборудование.
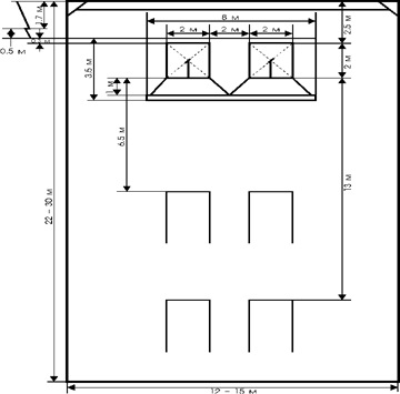
1. Городошная площадка размещается на ровном горизонтальном участке размером 30(22) х 15(12) метров.

2.Оборудование городошной площадки:
•металлические или полимерные листы, на которых краской наносятся линии "городов" и "пригородов". Оптимальная толщина листа - 10-12 мм;
•отбойная стенка;
•ограждение;
•осветительные приборы для игры вечером;
•фиксированные планки высотой 50-60 мм на лицевых линиях конов и полуконов;
•навесы для укрытия игроков и секретаря от атмосферных осадков;
Желательно оборудование общего навеса над "городами", "пригородами" и отбойной стенкой.
3. Площадь, ограниченная двумя боковыми линиями и передней планкой, из пределов которой производятся броски по фигурам, называется коном. Расстояние от планки кона до лицевой линии - 13 м (для взрослых) и 6.5 м (для детей и подростков до 15 лет).
Площадь, ограниченная боковыми линиями, передней планкой и планкой кона сзади, из пределов которой производятся броски после выбивания хотя бы одного городка (кроме фигуры "Письмо"), называется полуконом. Расстояние от передней планки полукона до лицевой линии - 6.5 м.

Поверхность конов и полуконов должна быть достаточно твердой, исключающей скольжение обуви. Наиболее предпочтительным покрытием является асфальт.
"Город" - зона, имеющая форму квадрата со стороной 2 м, в пределах которой устанавливаются фигуры.
"Пригород" - зона, находящаяся между лицевой и штрафной линиями, ограниченная с боков продолжениями диагоналей "города". По центру "пригорода" на расстоянии 20 и 40 см от штрафной линии наносят две отметки длиной 20 см для установки на них штрафных городков.
4.Штрафная линия и площадь, находящаяся перед ней, называются штрафной зоной. Ее засыпают песком или покрывают водной суспензией мела.
5.Листы, на которых размечаются два "города" с "пригородами", должны иметь размер не меньше 8.0 х 3.5 м и располагаться строго горизонтально (городок, спокойно положенный в любом месте "города" или "пригорода", не должен самопроизвольно катиться в каком-либо направлении при условии отсутствия каких-либо воздействий на него - ветра, сотрясения площадки.
6. Боковые линии кона и полукона должны находиться строго напротив боковых линий "города" с учетом того, что ширина ограничительных линий "города" и боковых линий "пригорода" входит в размеры "города", "пригорода", а ширина ограничительных линий кона и полукона в размеры этих зон не входит.
7. Линии разметки шириной 2 см окрашивают краской, контрастирующей с покрытием.
2. Городок
Городок может иметь форму цилиндра диаметром 48-50 мм или прямоугольного параллелепипеда, имеющего в сечении квадрат со стороной 45-47 мм , длиной 200 +- 1 мм. Городок изготавливается из древесины, может быть окрашен и не должен иметь каких-либо полостей. Торцы городков должны иметь фаску 2-3 мм и быть ровными.

3. Бита

Бита представляет собой круглый стержень длиной не более метра, произвольного диаметра. Бита собирается из вставок, втулок, концевого стакана и ручки. Наиболее целесообразно изготавливать вставки из древесно-слоистого пластика или из кизила. Ручки - из текстолитовых стержней или из кизила, втулки из стальной цельнотянутой трубы (рис.5.). Длина втулки должна быть не менее двух диаметров вставки. Вставки должны плотно соединяться с втулками и закрепляться кернением или другим способом крепления. Расстояние от края втулки до места крепления - 10-15 мм (за исключением крепления ручки). Составные части не должны иметь взаимных перемещений.
Для массовых соревнований допускаются биты из твердых пород древесины любой конструкции, обеспечивающей безопасность.
Последние новости
- 07.06.2023
- Боксерские манекены: как выбрать и правильно использовать для тренировки
- 08.11.2022
- Что такое клетки ММА и для чего они нужны?
- 21.10.2022
- Все особенности СК «Лужники»
- 17.07.2022
- В чем заключается польза тайского массажа?
- 15.07.2022
- Большой теннис для начинающих. Плюсы игры в большой теннис
Навигация
- Каталог SPORT
- Новости спорта
- События
- Юмор
- Статьи
- Авиамодельный спорт
- Акробатический рок-н-ролл
- Активный отдых и реабилитация
- Баскетбол
- Бег
- Бейсбол
- Бизнес в спорте
- Бильярд
- Блицспринт
- Бодибилдинг
- Боевые искусства
- Бокс
- Боулинг
- Велоспорт
- Военно-спортивные игры
- Волейбол
- Все для занятий спортом
- Гиревой спорт
- Гольф
- Горнолыжный спорт
- Городошный спорт
- Дайвинг
- Дартс
- Детям
- Джиу-джитсу
- Идеальное тело
- Керлинг
- Киберспорт и компьютерные игры
- Красота
- Кроссфит
- Лонгборд
- Лыжный спорт
- Мотоспорт
- Нарды
- Настольный теннис
- Плавание
- Петанк
- Регби
- Русская лапта
- Сквош
- Спорт и закон
- Спорт и человек
- Спорт и питание
- Спорт и рассеянный склероз
- Спортивная борьба
- Спортинг и стендовая стрельба
- Спортивная статистика
- Средства самообороны
- Страйкбол
- Сумо
- Ставки на спорт
- Стрелковый спорт
- Теннис
- Товары для занятия спортом
- Туризм
- Тхэквондо
- Тяжелая атлетика
- Фехтование
- Фитнессы и спортзалы
- Флорбол
- Футбол
- Хоккей
- Хоккей с мячом
- Шахматы
- Экстремальный спорт
